Preskoči na sadržaj
TEL:
+385 1 37 55 999
EMAIL:
info@bilic.hr
PRODAJA
Naslovnica
Reference
Projekt Pavićeva 2018
Drugi kat
S.2.14
Projekt Pavićeva 2022
O projektu Pavićeva 2022
Peti kat
Četvrti kat
Treći kat
Drugi kat
Prvi kat
Prizemlje
Parkirališna mjesta prizemlje
Garaža -1
Projekt Pavićeva 2018
O projektu Pavićeva 2018
Peti kat
Četvrti kat
Treći kat
Drugi kat
Prvi kat
Visoko prizemlje
Podrum
3d vizualizacije
Lokacija
Oprema stanova
Projekt Malešnica
O projektu Malešnica
Peti kat
Četvrti kat
Treći kat
Drugi kat
Prvi kat
Prizemlje
Prizemlje - parkirna mjesta
Garaža -1
Garaža -2
Lokacija
3d vizualizacije
Oprema stanova
Projekt Trnje
O projektu Trnje
Treći kat
Drugi kat
Prvi kat
Prizemlje
Prizemlje - parkirna mjesta
Podrum
Situacija
Lokacija
3d vizualizacije
Oprema stanova
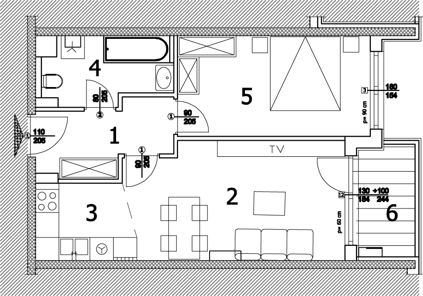
S.2.14
Tlocrt (186 KB)
Informacije o stanu
Etaža:
Drugi kat
Sobnost:
dvosoban
Površina:
49,81 m
2
Status stana:
Prodan
Cijena po m2:
Na upit
Iskaz neto površine stana
Oznaka
Prostorija
Površina
1.
Hodnik
5,75 m
2
2.
Blagovaonica + dnevni boravak
16,80 m
2
3.
Kuhinja
4,95 m
2
4.
Kupaonica
5,95 m
2
5.
Soba
12,86 m
2
6.
Lođa
4,67 m
2
*0,75 = 3,50 m
2
Ukupno:
49,81 m
2
Pozicija stana na etaži
Kontakti
+385 1 37 55 999
+385 99 261 9650
prodaja@bilic.hr
Pošaljite nam upit
Prethodna
Drugi kat
Sljedeća
vrh stranice
Projekt Gradna Gardens
O projektu Gradna Gardens
2. kat
1. kat
Prizemlje
Projekt Stenjevečka
O projektu Stenjevečka
Četvrti kat
Treći kat
Drugi kat
Prvi kat
Prizemlje
Prizemlje - parkirna mjesta
Podrum - garažna parkirna mjesta
Podrum - spremišta
O nama
Kontakt
Prodaja
Financiranje
Reference
Projekt Pavićeva 2022
O projektu Pavićeva 2022
Peti kat
Četvrti kat
Treći kat
Drugi kat
Prvi kat
Prizemlje
Parkirališna mjesta prizemlje
Garaža -1
Projekt Pavićeva 2018
O projektu Pavićeva 2018
Peti kat
Četvrti kat
Treći kat
Drugi kat
Prvi kat
Visoko prizemlje
Podrum
3d vizualizacije
Lokacija
Oprema stanova
Projekt Malešnica
O projektu Malešnica
Peti kat
Četvrti kat
Treći kat
Drugi kat
Prvi kat
Prizemlje
Prizemlje - parkirna mjesta
Garaža -1
Garaža -2
Lokacija
3d vizualizacije
Oprema stanova
Projekt Trnje
O projektu Trnje
Treći kat
Drugi kat
Prvi kat
Prizemlje
Prizemlje - parkirna mjesta
Podrum
Situacija
Lokacija
3d vizualizacije
Oprema stanova
Zaštita privatnosti
Projekt Gradna Gardens
Projekt Stenjevečka
O nama
Kontakt
Prodaja
Financiranje
Reference
Zaštita privatnosti
Zatvori
Vaš internet preglednik ne podržava kolačiće (eng. cookies).
Molimo omogućite spremanje kolačića (eng. cookie) kako biste mogli koristiti internet stranice u punoj funkcionalnosti.