Preskoči na sadržaj
TEL:
+385 1 37 55 999
EMAIL:
info@bilic.hr
PRODAJA
Naslovnica
Reference
Projekt Trnje
Prizemlje
Projekt Pavićeva 2022
O projektu Pavićeva 2022
Peti kat
Četvrti kat
Treći kat
Drugi kat
Prvi kat
Prizemlje
Parkirališna mjesta prizemlje
Garaža -1
Projekt Pavićeva 2018
O projektu Pavićeva 2018
Peti kat
Četvrti kat
Treći kat
Drugi kat
Prvi kat
Visoko prizemlje
Podrum
3d vizualizacije
Lokacija
Oprema stanova
Projekt Malešnica
O projektu Malešnica
Peti kat
Četvrti kat
Treći kat
Drugi kat
Prvi kat
Prizemlje
Prizemlje - parkirna mjesta
Garaža -1
Garaža -2
Lokacija
3d vizualizacije
Oprema stanova
Projekt Trnje
O projektu Trnje
Treći kat
Drugi kat
Prvi kat
Prizemlje
Prizemlje - parkirna mjesta
Podrum
Situacija
Lokacija
3d vizualizacije
Oprema stanova
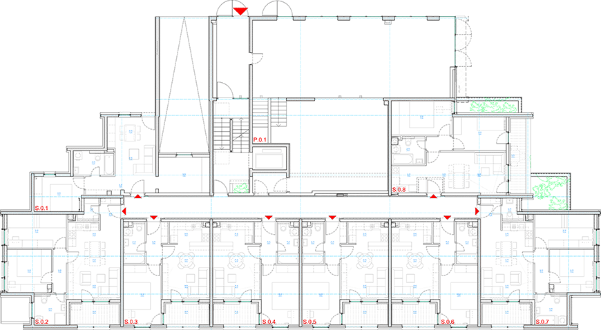
Prizemlje
Za prodaju
Rezervirano
Prodano
Oznaka:
S.0.1.
Sobnost:
Dvosobni
Površina (m
2
):
40,68 m
2
Status:
Prodan
Oznaka:
S.0.2.
Sobnost:
Trosobni
Površina (m
2
):
61,24 m
2
Status:
Prodan
Oznaka:
S.0.3.
Sobnost:
Dvosobni
Površina (m
2
):
44,08 m
2
Status:
Prodan
Oznaka:
S.0.4.
Sobnost:
Dvosobni
Površina (m
2
):
44,08 m
2
Status:
Prodan
Oznaka:
S.0.5.
Sobnost:
Dvosobni
Površina (m
2
):
44,08 m
2
Status:
Prodan
Oznaka:
S.0.6.
Sobnost:
Dvosobni
Površina (m
2
):
44,08 m
2
Status:
Prodan
Oznaka:
S.0.7.
Sobnost:
Trosobni
Površina (m
2
):
61,24 m
2
Status:
Prodan
Oznaka:
S.0.8.
Sobnost:
Trosobni
Površina (m
2
):
57,44 m
2
Status:
Prodan
Oznaka:
P.0.1.
Površina (m
2
):
146,19 m
2
Status:
Prodan
Tlocrt (360 KB)
Ukupan broj stanova na etaži:
8
Popis stanova na etaži
Oznaka
Sobnost
Površina
Status
S.0.1.
Dvosobni
40,68 m
2
Prodan
Pošalji upit
S.0.2.
Trosobni
61,24 m
2
Prodan
Pošalji upit
S.0.3.
Dvosobni
44,08 m
2
Prodan
Pošalji upit
S.0.4.
Dvosobni
44,08 m
2
Prodan
Pošalji upit
S.0.5.
Dvosobni
44,08 m
2
Prodan
Pošalji upit
S.0.6.
Dvosobni
44,08 m
2
Prodan
Pošalji upit
S.0.7.
Trosobni
61,24 m
2
Prodan
Pošalji upit
S.0.8.
Trosobni
57,44 m
2
Prodan
Pošalji upit
Ukupan broj poslovnih prostora na etaži:
1
Popis poslovnih prostora na etaži
Oznaka
Površina
Status
P.0.1.
146,19 m
2
Prodan
Pošalji upit
vrh stranice
Projekt Gradna Gardens
O projektu Gradna Gardens
2. kat
1. kat
Prizemlje
Projekt Stenjevečka
O projektu Stenjevečka
Četvrti kat
Treći kat
Drugi kat
Prvi kat
Prizemlje
Prizemlje - parkirna mjesta
Podrum - garažna parkirna mjesta
Podrum - spremišta
O nama
Kontakt
Prodaja
Financiranje
Reference
Projekt Pavićeva 2022
O projektu Pavićeva 2022
Peti kat
Četvrti kat
Treći kat
Drugi kat
Prvi kat
Prizemlje
Parkirališna mjesta prizemlje
Garaža -1
Projekt Pavićeva 2018
O projektu Pavićeva 2018
Peti kat
Četvrti kat
Treći kat
Drugi kat
Prvi kat
Visoko prizemlje
Podrum
3d vizualizacije
Lokacija
Oprema stanova
Projekt Malešnica
O projektu Malešnica
Peti kat
Četvrti kat
Treći kat
Drugi kat
Prvi kat
Prizemlje
Prizemlje - parkirna mjesta
Garaža -1
Garaža -2
Lokacija
3d vizualizacije
Oprema stanova
Projekt Trnje
O projektu Trnje
Treći kat
Drugi kat
Prvi kat
Prizemlje
Prizemlje - parkirna mjesta
Podrum
Situacija
Lokacija
3d vizualizacije
Oprema stanova
Zaštita privatnosti
Projekt Gradna Gardens
Projekt Stenjevečka
O nama
Kontakt
Prodaja
Financiranje
Reference
Zaštita privatnosti
Zatvori
Vaš internet preglednik ne podržava kolačiće (eng. cookies).
Molimo omogućite spremanje kolačića (eng. cookie) kako biste mogli koristiti internet stranice u punoj funkcionalnosti.