Preskoči na sadržaj
TEL:
+385 1 37 55 999
EMAIL:
info@bilic.hr
PRODAJA
Naslovnica
Reference
Projekt Malešnica
Peti kat
Projekt Pavićeva 2022
O projektu Pavićeva 2022
Peti kat
Četvrti kat
Treći kat
Drugi kat
Prvi kat
Prizemlje
Parkirališna mjesta prizemlje
Garaža -1
Projekt Pavićeva 2018
O projektu Pavićeva 2018
Peti kat
Četvrti kat
Treći kat
Drugi kat
Prvi kat
Visoko prizemlje
Podrum
3d vizualizacije
Lokacija
Oprema stanova
Projekt Malešnica
O projektu Malešnica
Peti kat
Četvrti kat
Treći kat
Drugi kat
Prvi kat
Prizemlje
Prizemlje - parkirna mjesta
Garaža -1
Garaža -2
Lokacija
3d vizualizacije
Oprema stanova
Projekt Trnje
O projektu Trnje
Treći kat
Drugi kat
Prvi kat
Prizemlje
Prizemlje - parkirna mjesta
Podrum
Situacija
Lokacija
3d vizualizacije
Oprema stanova
Peti kat
Za prodaju
Rezervirano
Prodano
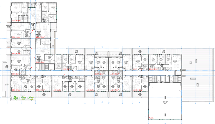
Oznaka:
Pp.5.24.
Površina (m
2
):
255,65 m
2
Status:
Prodan
Oznaka:
S.5.105.
Sobnost:
trosoban
Površina (m
2
):
62,43 m
2
Status:
Prodan
Oznaka:
S.5.104.
Sobnost:
dvosoban
Površina (m
2
):
41,17 m
2
Status:
Prodan
Oznaka:
S.5.103.
Sobnost:
četverosoban
Površina (m
2
):
87,36 m
2
Status:
Prodan
Oznaka:
S.5.102.
Sobnost:
dvosoban
Površina (m
2
):
41,24 m
2
Status:
Prodan
Oznaka:
S.5.101.
Sobnost:
trosoban
Površina (m
2
):
57,56 m
2
Status:
Prodan
Oznaka:
S.5.64.
Sobnost:
dvosoban
Površina (m
2
):
58,51 m
2
Status:
Prodan
Oznaka:
S.5.63.
Sobnost:
dvosoban
Površina (m
2
):
46,90 m
2
Status:
Prodan
Oznaka:
S.5.62.
Sobnost:
dvosoban
Površina (m
2
):
46,90 m
2
Status:
Prodan
Oznaka:
S.5.61.
Sobnost:
četverosoban
Površina (m
2
):
84,58 m
2
Status:
Prodan
Oznaka:
S.5.60.
Sobnost:
četverosoban
Površina (m
2
):
79,43 m
2
Status:
Prodan
Oznaka:
S.5.59.
Sobnost:
četverosoban
Površina (m
2
):
75,61 m
2
Status:
Prodan
Oznaka:
S.5.58.
Sobnost:
trosoban
Površina (m
2
):
55,17 m
2
Status:
Prodan
Oznaka:
S.5.57.
Sobnost:
trosoban
Površina (m
2
):
62,43 m
2
Status:
Prodan
Oznaka:
S.5.56.
Sobnost:
trosoban
Površina (m
2
):
57,56 m
2
Status:
Prodan
Oznaka:
S.5.55.
Sobnost:
četverosoban
Površina (m
2
):
82,39 m
2
Status:
Prodan
Oznaka:
S.5.54.
Sobnost:
dvosoban
Površina (m
2
):
41,17 m
2
Status:
Prodan
Oznaka:
S.5.53.
Sobnost:
trosoban
Površina (m
2
):
77,83 m
2
Status:
Prodan
Tlocrt (677 KB)
Ukupan broj stanova na etaži:
17
Popis stanova na etaži
Oznaka
Sobnost
Površina
Status
S.5.105.
trosoban
62,43 m
2
Prodan
Pošalji upit
S.5.104.
dvosoban
41,17 m
2
Prodan
Pošalji upit
S.5.103.
četverosoban
87,36 m
2
Prodan
Pošalji upit
S.5.102.
dvosoban
41,24 m
2
Prodan
Pošalji upit
S.5.101.
trosoban
57,56 m
2
Prodan
Pošalji upit
S.5.64.
dvosoban
58,51 m
2
Prodan
Pošalji upit
S.5.63.
dvosoban
46,90 m
2
Prodan
Pošalji upit
S.5.62.
dvosoban
46,90 m
2
Prodan
Pošalji upit
S.5.61.
četverosoban
84,58 m
2
Prodan
Pošalji upit
S.5.60.
četverosoban
79,43 m
2
Prodan
Pošalji upit
S.5.59.
četverosoban
75,61 m
2
Prodan
Pošalji upit
S.5.58.
trosoban
55,17 m
2
Prodan
Pošalji upit
S.5.57.
trosoban
62,43 m
2
Prodan
Pošalji upit
S.5.56.
trosoban
57,56 m
2
Prodan
Pošalji upit
S.5.55.
četverosoban
82,39 m
2
Prodan
Pošalji upit
S.5.54.
dvosoban
41,17 m
2
Prodan
Pošalji upit
S.5.53.
trosoban
77,83 m
2
Prodan
Pošalji upit
Ukupan broj poslovnih prostora na etaži:
1
Popis poslovnih prostora na etaži
Oznaka
Površina
Status
Pp.5.24.
255,65 m
2
Prodan
Pošalji upit
vrh stranice
Projekt Gradna Gardens
O projektu Gradna Gardens
2. kat
1. kat
Prizemlje
Projekt Stenjevečka
O projektu Stenjevečka
Četvrti kat
Treći kat
Drugi kat
Prvi kat
Prizemlje
Prizemlje - parkirna mjesta
Podrum - garažna parkirna mjesta
Podrum - spremišta
O nama
Kontakt
Prodaja
Financiranje
Reference
Projekt Pavićeva 2022
O projektu Pavićeva 2022
Peti kat
Četvrti kat
Treći kat
Drugi kat
Prvi kat
Prizemlje
Parkirališna mjesta prizemlje
Garaža -1
Projekt Pavićeva 2018
O projektu Pavićeva 2018
Peti kat
Četvrti kat
Treći kat
Drugi kat
Prvi kat
Visoko prizemlje
Podrum
3d vizualizacije
Lokacija
Oprema stanova
Projekt Malešnica
O projektu Malešnica
Peti kat
Četvrti kat
Treći kat
Drugi kat
Prvi kat
Prizemlje
Prizemlje - parkirna mjesta
Garaža -1
Garaža -2
Lokacija
3d vizualizacije
Oprema stanova
Projekt Trnje
O projektu Trnje
Treći kat
Drugi kat
Prvi kat
Prizemlje
Prizemlje - parkirna mjesta
Podrum
Situacija
Lokacija
3d vizualizacije
Oprema stanova
Zaštita privatnosti
Projekt Gradna Gardens
Projekt Stenjevečka
O nama
Kontakt
Prodaja
Financiranje
Reference
Zaštita privatnosti
Zatvori
Vaš internet preglednik ne podržava kolačiće (eng. cookies).
Molimo omogućite spremanje kolačića (eng. cookie) kako biste mogli koristiti internet stranice u punoj funkcionalnosti.