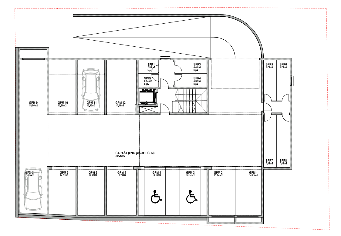
Ukupan broj garažnih parkirnih mjesta na etaži
12
Popis garažnih parkirnih mjesta na etaži
| Oznaka |
Površina |
Status |
|
|
GPM12
|
8,77 m2 |
Prodan
|
|
|
GPM11
|
7,98 m2 |
Prodan
|
|
|
GPM10
|
7,98 m2 |
Prodan
|
|
|
GPM9
|
7,98 m2 |
Prodan
|
|
|
GPM8
|
6,85 m2 |
Prodan
|
|
|
GPM7
|
7,01 m2 |
Prodan
|
|
|
GPM6
|
7,14 m2 |
Prodan
|
|
|
GPM5
|
7,86 m2 |
Prodan
|
|
|
GPM4
|
7,16 m2 |
Prodan
|
|
|
GPM3
|
7,16 m2 |
Prodan
|
|
|
GPM2
|
6,97 m2 |
Prodan
|
|
|
GPM1
|
7,02 m2 |
Prodan
|
|