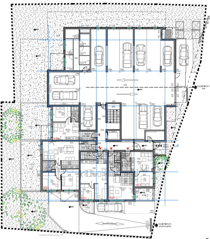
Prizemlje

  • Za prodaju
  • Rezervirano
  • Prodano
Prizemlje

Ukupan broj stanova na etaži: 5

Popis stanova na etaži

Oznaka Sobnost Površina Status  
Stan S 0.5 dvosoban 30,55 m2 Prodan
Stan S 0.4 jednosoban 30,32 m2 Prodan
Stan S 0.3 dvosoban 41,94 m2 Prodan
Stan S 0.2. trosoban 65,37 m2 Prodan
Stan S 0.1. dvosoban 36,97 m2 Prodan

Ukupan broj spremišta, garažnih i parkirnih mjesta na etaži 20

Popis spremišta, garažnih i parkirnih mjesta na etaži

Oznaka Površina Status  
Spremište 6 3,04 m2 Prodan
Spremište 5 3,04 m2 Prodan
Spremište 4 4,06 m2 Prodan
Spremište 3 4,25 m2 Prodan
Spremište 2 3,99 m2 Prodan
Spremište 1 3,99 m2 Prodan
PGM 14 12,45 m2 Prodan
PGM 13 13,00 m2 Prodan
PGM 12 15,63 m2 Prodan
PGM 11 18,09 m2 Prodan
PGM 10 14,00 m2 Prodan
PGM 9 17,02 m2 Prodan
PGM 8 17,10 m2 Prodan
PGM 7 21,72 m2 Prodan
PGM 6 18,52 m2 Prodan
PGM 5 19,75 m2 Prodan
PGM 4 18,72 m2 Prodan
PGM 3 19,80 m2 Prodan
PGM 2 14,28 m2 Prodan
PM 1 18,80 m2 Rezerviran
vrh stranice