Preskoči na sadržaj
TEL:
+385 1 37 55 999
EMAIL:
info@bilic.hr
PRODAJA
Naslovnica
Reference
Projekt Malešnica
Četvrti kat
Projekt Pavićeva 2022
O projektu Pavićeva 2022
Peti kat
Četvrti kat
Treći kat
Drugi kat
Prvi kat
Prizemlje
Parkirališna mjesta prizemlje
Garaža -1
Projekt Pavićeva 2018
O projektu Pavićeva 2018
Peti kat
Četvrti kat
Treći kat
Drugi kat
Prvi kat
Visoko prizemlje
Podrum
3d vizualizacije
Lokacija
Oprema stanova
Projekt Malešnica
O projektu Malešnica
Peti kat
Četvrti kat
Treći kat
Drugi kat
Prvi kat
Prizemlje
Prizemlje - parkirna mjesta
Garaža -1
Garaža -2
Lokacija
3d vizualizacije
Oprema stanova
Projekt Trnje
O projektu Trnje
Treći kat
Drugi kat
Prvi kat
Prizemlje
Prizemlje - parkirna mjesta
Podrum
Situacija
Lokacija
3d vizualizacije
Oprema stanova
Četvrti kat
Za prodaju
Rezervirano
Prodano
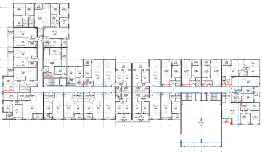
Oznaka:
Pp.4.23.
Površina (m
2
):
192,30 m
2
Status:
Prodan
Oznaka:
S.4.100.
Sobnost:
trosoban
Površina (m
2
):
73,23 m
2
Status:
Prodan
Oznaka:
S.4.99.
Sobnost:
dvosoban
Površina (m
2
):
49,66 m
2
Status:
Prodan
Oznaka:
S.4.98.
Sobnost:
dvosoban
Površina (m
2
):
49,75 m
2
Status:
Prodan
Oznaka:
S.4.97.
Sobnost:
dvosoban
Površina (m
2
):
49,80 m
2
Status:
Prodan
Oznaka:
S.4.96.
Sobnost:
trosoban
Površina (m
2
):
68,78 m
2
Status:
Prodan
Oznaka:
S.4.95.
Sobnost:
trosoban
Površina (m
2
):
67,35 m
2
Status:
Prodan
Oznaka:
S.4.94.
Sobnost:
četverosoban
Površina (m
2
):
88,28 m
2
Status:
Prodan
Oznaka:
S.4.93.
Sobnost:
dvosoban
Površina (m
2
):
50,01 m
2
Status:
Prodan
Oznaka:
S.4.92.
Sobnost:
trosoban
Površina (m
2
):
72,23 m
2
Status:
Prodan
Oznaka:
S.4.52.
Sobnost:
trosoban
Površina (m
2
):
71,44 m
2
Status:
Prodan
Oznaka:
S.4.51.
Sobnost:
dvosoban
Površina (m
2
):
48,08 m
2
Status:
Prodan
Oznaka:
S.4.50.
Sobnost:
dvosoban
Površina (m
2
):
48,08 m
2
Status:
Prodan
Oznaka:
S.4.49.
Sobnost:
četverosoban
Površina (m
2
):
86,46 m
2
Status:
Prodan
Oznaka:
S.4.48.
Sobnost:
peterosoban
Površina (m
2
):
87,80 m
2
Status:
Prodan
Oznaka:
S.4.47.
Sobnost:
četverosoban
Površina (m
2
):
80,22 m
2
Status:
Prodan
Oznaka:
S.4.46.
Sobnost:
trosoban
Površina (m
2
):
64,25 m
2
Status:
Prodan
Oznaka:
S.4.45.
Sobnost:
trosoban
Površina (m
2
):
73,23 m
2
Status:
Prodan
Oznaka:
S.4.43.
Sobnost:
dvosoban
Površina (m
2
):
49,80 m
2
Status:
Prodan
Oznaka:
S.4.42.
Sobnost:
dvosoban
Površina (m
2
):
49,75 m
2
Status:
Prodan
Oznaka:
S.4.41.
Sobnost:
dvosoban
Površina (m
2
):
49,80 m
2
Status:
Prodan
Oznaka:
S.4.40.
Sobnost:
četverosoban
Površina (m
2
):
98,57 m
2
Status:
Prodan
Oznaka:
S.4.44.
Sobnost:
trosoban
Površina (m
2
):
72,23 m
2
Status:
Prodan
Tlocrt (835 KB)
Ukupan broj stanova na etaži:
22
Popis stanova na etaži
Oznaka
Sobnost
Površina
Status
S.4.100.
trosoban
73,23 m
2
Prodan
Pošalji upit
S.4.99.
dvosoban
49,66 m
2
Prodan
Pošalji upit
S.4.98.
dvosoban
49,75 m
2
Prodan
Pošalji upit
S.4.97.
dvosoban
49,80 m
2
Prodan
Pošalji upit
S.4.96.
trosoban
68,78 m
2
Prodan
Pošalji upit
S.4.95.
trosoban
67,35 m
2
Prodan
Pošalji upit
S.4.94.
četverosoban
88,28 m
2
Prodan
Pošalji upit
S.4.93.
dvosoban
50,01 m
2
Prodan
Pošalji upit
S.4.92.
trosoban
72,23 m
2
Prodan
Pošalji upit
S.4.52.
trosoban
71,44 m
2
Prodan
Pošalji upit
S.4.51.
dvosoban
48,08 m
2
Prodan
Pošalji upit
S.4.50.
dvosoban
48,08 m
2
Prodan
Pošalji upit
S.4.49.
četverosoban
86,46 m
2
Prodan
Pošalji upit
S.4.48.
peterosoban
87,80 m
2
Prodan
Pošalji upit
S.4.47.
četverosoban
80,22 m
2
Prodan
Pošalji upit
S.4.46.
trosoban
64,25 m
2
Prodan
Pošalji upit
S.4.45.
trosoban
73,23 m
2
Prodan
Pošalji upit
S.4.43.
dvosoban
49,80 m
2
Prodan
Pošalji upit
S.4.42.
dvosoban
49,75 m
2
Prodan
Pošalji upit
S.4.41.
dvosoban
49,80 m
2
Prodan
Pošalji upit
S.4.40.
četverosoban
98,57 m
2
Prodan
Pošalji upit
S.4.44.
trosoban
72,23 m
2
Prodan
Pošalji upit
Ukupan broj poslovnih prostora na etaži:
1
Popis poslovnih prostora na etaži
Oznaka
Površina
Status
Pp.4.23.
192,30 m
2
Prodan
Pošalji upit
vrh stranice
Projekt Gradna Gardens
O projektu Gradna Gardens
2. kat
1. kat
Prizemlje
Projekt Stenjevečka
O projektu Stenjevečka
Četvrti kat
Treći kat
Drugi kat
Prvi kat
Prizemlje
Prizemlje - parkirna mjesta
Podrum - garažna parkirna mjesta
Podrum - spremišta
O nama
Kontakt
Prodaja
Financiranje
Reference
Projekt Pavićeva 2022
O projektu Pavićeva 2022
Peti kat
Četvrti kat
Treći kat
Drugi kat
Prvi kat
Prizemlje
Parkirališna mjesta prizemlje
Garaža -1
Projekt Pavićeva 2018
O projektu Pavićeva 2018
Peti kat
Četvrti kat
Treći kat
Drugi kat
Prvi kat
Visoko prizemlje
Podrum
3d vizualizacije
Lokacija
Oprema stanova
Projekt Malešnica
O projektu Malešnica
Peti kat
Četvrti kat
Treći kat
Drugi kat
Prvi kat
Prizemlje
Prizemlje - parkirna mjesta
Garaža -1
Garaža -2
Lokacija
3d vizualizacije
Oprema stanova
Projekt Trnje
O projektu Trnje
Treći kat
Drugi kat
Prvi kat
Prizemlje
Prizemlje - parkirna mjesta
Podrum
Situacija
Lokacija
3d vizualizacije
Oprema stanova
Zaštita privatnosti
Projekt Gradna Gardens
Projekt Stenjevečka
O nama
Kontakt
Prodaja
Financiranje
Reference
Zaštita privatnosti
Zatvori
Vaš internet preglednik ne podržava kolačiće (eng. cookies).
Molimo omogućite spremanje kolačića (eng. cookie) kako biste mogli koristiti internet stranice u punoj funkcionalnosti.