Preskoči na sadržaj
TEL:
+385 1 37 55 999
EMAIL:
info@bilic.hr
PRODAJA
Naslovnica
Reference
Projekt Malešnica
Drugi kat
Projekt Pavićeva 2022
O projektu Pavićeva 2022
Peti kat
Četvrti kat
Treći kat
Drugi kat
Prvi kat
Prizemlje
Parkirališna mjesta prizemlje
Garaža -1
Projekt Pavićeva 2018
O projektu Pavićeva 2018
Peti kat
Četvrti kat
Treći kat
Drugi kat
Prvi kat
Visoko prizemlje
Podrum
3d vizualizacije
Lokacija
Oprema stanova
Projekt Malešnica
O projektu Malešnica
Peti kat
Četvrti kat
Treći kat
Drugi kat
Prvi kat
Prizemlje
Prizemlje - parkirna mjesta
Garaža -1
Garaža -2
Lokacija
3d vizualizacije
Oprema stanova
Projekt Trnje
O projektu Trnje
Treći kat
Drugi kat
Prvi kat
Prizemlje
Prizemlje - parkirna mjesta
Podrum
Situacija
Lokacija
3d vizualizacije
Oprema stanova
Drugi kat
Za prodaju
Rezervirano
Prodano
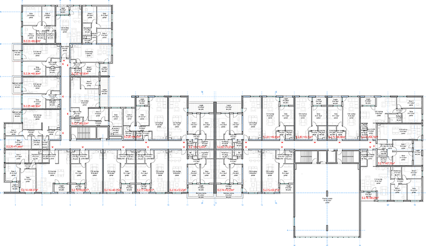
Oznaka:
Pp.2.21.
Površina (m
2
):
192,30 m
2
Status:
Prodan
Oznaka:
S.2.82.
Sobnost:
trosoban
Površina (m
2
):
73,23 m
2
Status:
Prodan
Oznaka:
S.2.81.
Sobnost:
dvosoban
Površina (m
2
):
49,66 m
2
Status:
Prodan
Oznaka:
S.2.80.
Sobnost:
dvosoban
Površina (m
2
):
49,75 m
2
Status:
Prodan
Oznaka:
S.2.79.
Sobnost:
dvosoban
Površina (m
2
):
49,80 m
2
Status:
Prodan
Oznaka:
S.2.78.
Sobnost:
trosoban
Površina (m
2
):
68,78 m
2
Status:
Prodan
Oznaka:
S.2.77.
Sobnost:
trosoban
Površina (m
2
):
67,35 m
2
Status:
Prodan
Oznaka:
S.2.76.
Sobnost:
četverosoban
Površina (m
2
):
88,28 m
2
Status:
Prodan
Oznaka:
S.2.75.
Sobnost:
dvosoban
Površina (m
2
):
50,01 m
2
Status:
Prodan
Oznaka:
S.2.74.
Sobnost:
trosoban
Površina (m
2
):
72,23 m
2
Status:
Prodan
Oznaka:
S.2.26.
Sobnost:
trosoban
Površina (m
2
):
71,44 m
2
Status:
Prodan
Oznaka:
S.2.25.
Sobnost:
dvosoban
Površina (m
2
):
48,08 m
2
Status:
Prodan
Oznaka:
S.2.24.
Sobnost:
dvosoban
Površina (m
2
):
48,08 m
2
Status:
Prodan
Oznaka:
S.2.23.
Sobnost:
četverosoban
Površina (m
2
):
86,46 m
2
Status:
Prodan
Oznaka:
S.2.22.
Sobnost:
peterosoban
Površina (m
2
):
87,80 m
2
Status:
Prodan
Oznaka:
S.2.21.
Sobnost:
četverosoban
Površina (m
2
):
80,22 m
2
Status:
Prodan
Oznaka:
S.2.20.
Sobnost:
trosoban
Površina (m
2
):
64,25 m
2
Status:
Prodan
Oznaka:
S.2.19.
Sobnost:
trosoban
Površina (m
2
):
73,23 m
2
Status:
Prodan
Oznaka:
S.2.18.
Sobnost:
trosoban
Površina (m
2
):
72,23 m
2
Status:
Prodan
Oznaka:
S.2.17.
Sobnost:
dvosoban
Površina (m
2
):
49,80 m
2
Status:
Prodan
Oznaka:
S.2.16.
Sobnost:
dvosoban
Površina (m
2
):
49,75 m
2
Status:
Prodan
Oznaka:
S.2.15.
Sobnost:
dvosoban
Površina (m
2
):
49,80 m
2
Status:
Prodan
Oznaka:
S.2.14.
Sobnost:
četverosoban
Površina (m
2
):
98,57 m
2
Status:
Prodan
Tlocrt (838 KB)
Ukupan broj stanova na etaži:
22
Popis stanova na etaži
Oznaka
Sobnost
Površina
Status
S.2.82.
trosoban
73,23 m
2
Prodan
Pošalji upit
S.2.81.
dvosoban
49,66 m
2
Prodan
Pošalji upit
S.2.80.
dvosoban
49,75 m
2
Prodan
Pošalji upit
S.2.79.
dvosoban
49,80 m
2
Prodan
Pošalji upit
S.2.78.
trosoban
68,78 m
2
Prodan
Pošalji upit
S.2.77.
trosoban
67,35 m
2
Prodan
Pošalji upit
S.2.76.
četverosoban
88,28 m
2
Prodan
Pošalji upit
S.2.75.
dvosoban
50,01 m
2
Prodan
Pošalji upit
S.2.74.
trosoban
72,23 m
2
Prodan
Pošalji upit
S.2.26.
trosoban
71,44 m
2
Prodan
Pošalji upit
S.2.25.
dvosoban
48,08 m
2
Prodan
Pošalji upit
S.2.24.
dvosoban
48,08 m
2
Prodan
Pošalji upit
S.2.23.
četverosoban
86,46 m
2
Prodan
Pošalji upit
S.2.22.
peterosoban
87,80 m
2
Prodan
Pošalji upit
S.2.21.
četverosoban
80,22 m
2
Prodan
Pošalji upit
S.2.20.
trosoban
64,25 m
2
Prodan
Pošalji upit
S.2.19.
trosoban
73,23 m
2
Prodan
Pošalji upit
S.2.18.
trosoban
72,23 m
2
Prodan
Pošalji upit
S.2.17.
dvosoban
49,80 m
2
Prodan
Pošalji upit
S.2.16.
dvosoban
49,75 m
2
Prodan
Pošalji upit
S.2.15.
dvosoban
49,80 m
2
Prodan
Pošalji upit
S.2.14.
četverosoban
98,57 m
2
Prodan
Pošalji upit
Ukupan broj poslovnih prostora na etaži:
1
Popis poslovnih prostora na etaži
Oznaka
Površina
Status
Pp.2.21.
192,30 m
2
Prodan
Pošalji upit
vrh stranice
Projekt Gradna Gardens
O projektu Gradna Gardens
2. kat
1. kat
Prizemlje
Projekt Stenjevečka
O projektu Stenjevečka
Četvrti kat
Treći kat
Drugi kat
Prvi kat
Prizemlje
Prizemlje - parkirna mjesta
Podrum - garažna parkirna mjesta
Podrum - spremišta
O nama
Kontakt
Prodaja
Financiranje
Reference
Projekt Pavićeva 2022
O projektu Pavićeva 2022
Peti kat
Četvrti kat
Treći kat
Drugi kat
Prvi kat
Prizemlje
Parkirališna mjesta prizemlje
Garaža -1
Projekt Pavićeva 2018
O projektu Pavićeva 2018
Peti kat
Četvrti kat
Treći kat
Drugi kat
Prvi kat
Visoko prizemlje
Podrum
3d vizualizacije
Lokacija
Oprema stanova
Projekt Malešnica
O projektu Malešnica
Peti kat
Četvrti kat
Treći kat
Drugi kat
Prvi kat
Prizemlje
Prizemlje - parkirna mjesta
Garaža -1
Garaža -2
Lokacija
3d vizualizacije
Oprema stanova
Projekt Trnje
O projektu Trnje
Treći kat
Drugi kat
Prvi kat
Prizemlje
Prizemlje - parkirna mjesta
Podrum
Situacija
Lokacija
3d vizualizacije
Oprema stanova
Zaštita privatnosti
Projekt Gradna Gardens
Projekt Stenjevečka
O nama
Kontakt
Prodaja
Financiranje
Reference
Zaštita privatnosti
Zatvori
Vaš internet preglednik ne podržava kolačiće (eng. cookies).
Molimo omogućite spremanje kolačića (eng. cookie) kako biste mogli koristiti internet stranice u punoj funkcionalnosti.